錦3丁目・栄を中心に店舗・オフィス・住居の不動産をお探しなら名古屋市中区の東栄エステートへ
TEL:052-962-6888
| 物件種別 | 貸店舗 |
|---|---|
| 所在地 | 名古屋市中区錦3丁目7番5号 |
| 交通 |
東山線 栄駅 徒歩5分 名城線 栄駅 徒歩5分 |
| 賃料 | 71.5万円(税込) |
| 共益費 | 55,000円(税込) |
| その他費用 | 保証金:3,700,000円 |
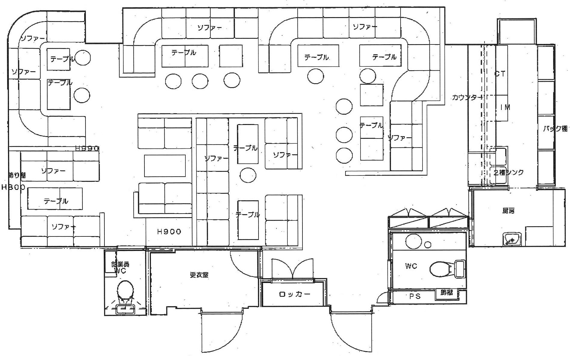
| 占有面積 | 112.40m² (34.00坪) |
| 築年数 | 33年(平成5年05月) |
| 建物構造 | SRC(鉄骨鉄筋コンクリート) |
| 規模 | 地下2階付13階建 |
| 用途地域 | 商業地域 |
| 設備・条件等 | リース店舗、ガス給湯、エレベーターあり |
| 対応業種 | クラブ・ラウンジ |
| 現況 | 空室 |
| 引渡 | 相談 |
| 物件番号 | 1962 |
| 取引形態 | 一般媒介 |
| コメント・備考 | 償却率:80% 内装:クラブ向き 引渡し:一部改装渡し |
営業時間 9:30~19:00(定休日:土日祝)
管理ビルのテナント様で緊急の場合は電話対応となります。

ビル及び店舗内において急を要しない不具合のご連絡はこちらのLINEにご連絡下さい。
錦三丁目及び栄エリアにて物件をお探しの方はお気軽にこちらのLINEにお問い合わせ下さい。